newsletter
¡SE EL PRIMER EN RECIBIR LAS MEJORES OFERTAS!
Chat WhatsApp
  • Polski
  • Español
  • English

Torrevieja

ref. number: TM-44361

293 000 €

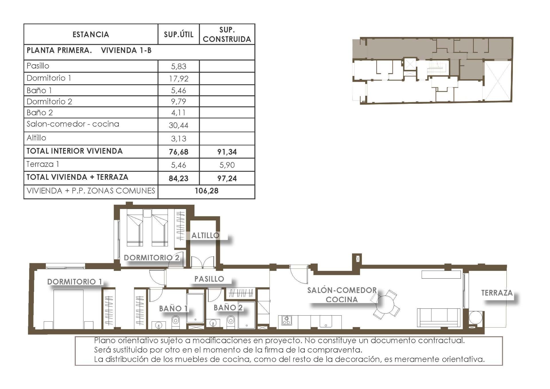
Construir (m²)
92 m2
terreno (m²)
68 m2
Habitaciones
2
Baños
1
Piscina
1

Descripción

Lagoons Village by TM está ubicado en un entorno natural privilegiado, entre el Parque Natural de las Lagunas de La Mata y la Laguna Rosa de Torrevieja. El primer residencial, Laguna Rosa, contará con 240 viviendas de variada tipología como apartamentos, bungalows, villas pareadas e independientes de 1, 2 y 3 dormitorios con 1, 2 y 3 baños. Los apartamentos y bungalows en planta baja tendrán jardín y los de última planta, solárium, todos muy luminosos y con amplios espacios. Además, las villas gozan de un extenso jardín con opción de piscina privada. Todas las viviendas dispondrán de aparcamiento exterior y/o en sótano con o sin trastero, según tipología.

Imágenes

Localización

Fill out the form below to reach us and ask questions