newsletter
¡SE EL PRIMER EN RECIBIR LAS MEJORES OFERTAS!
Chat WhatsApp
  • Polski
  • Español
  • English

Orihuela costa

ref. number: A-003410

759 000 €

Construir (m²)
113 m2
terreno (m²)
464 m2
Habitaciones
3
Baños
2
Piscina
1
  • Terraza
  • Jardín
  • A/C
  • Terraza en la azotea
  • Cochera
  • Aparcamiento en la parcela
  • Terraza cubierta
  • Panel solar
  • Armarios empotrados
  • Vistas de la zona verde
  • Solárium
  • Lavandería

Descripción

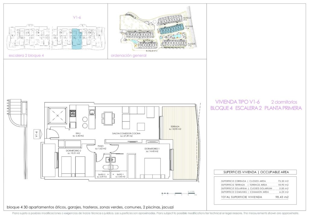
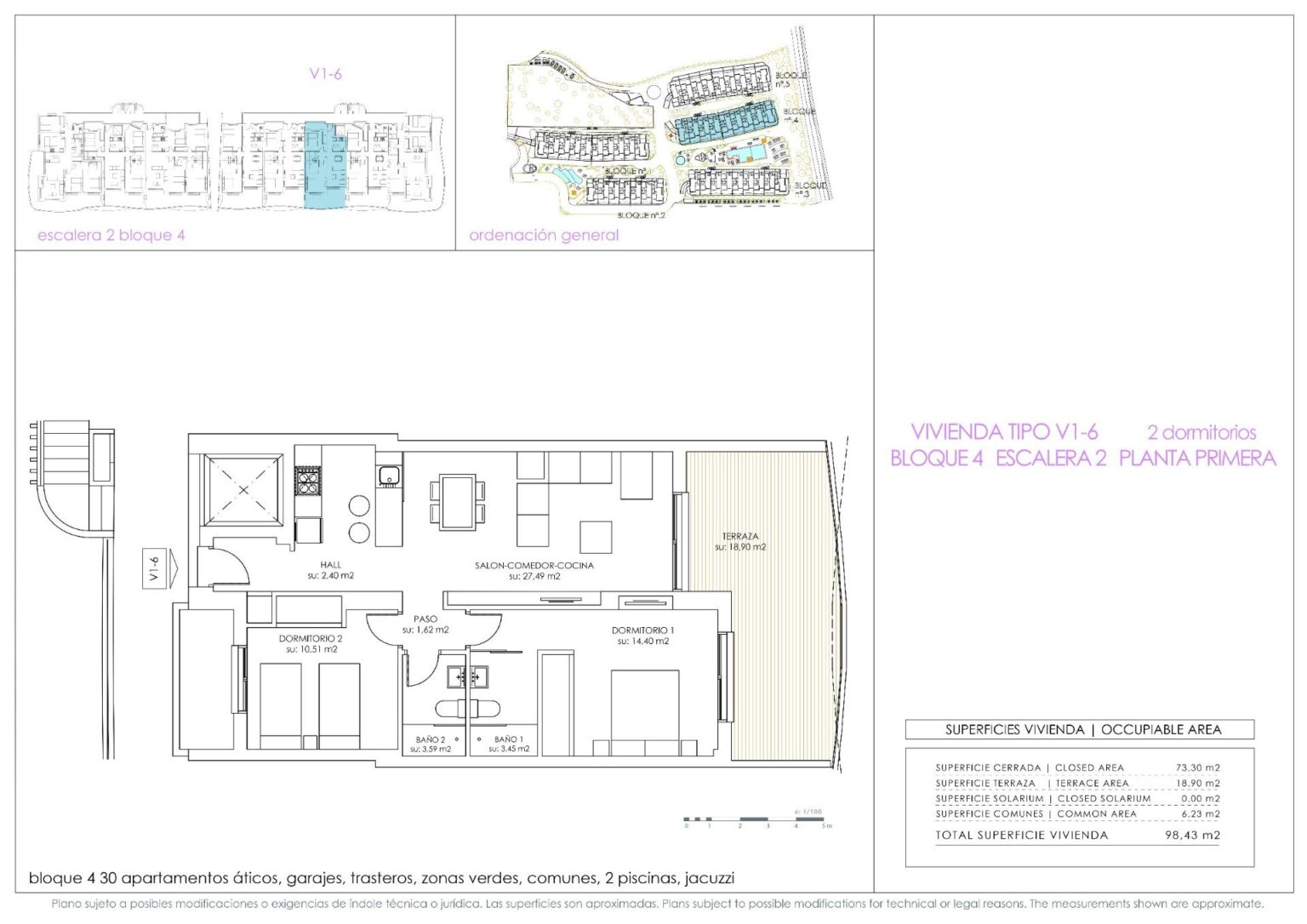
En Villamartín, Orihuela Costa, se encuentra esta moderna villa independiente construida en 2018. Con una superficie construida de 113 m² sobre una generosa parcela de 464 m², la vivienda ofrece un diseño contemporáneo y una distribución funcional pensada para disfrutar al máximo del estilo de vida mediterráneo. La orientación sur garantiza luz natural durante todo el día, aportando calidez y confort a todos los espacios. La villa cuenta con tres amplios dormitorios, todos ellos con armarios empotrados, y dos baños completos, uno de ellos en suite dentro del dormitorio principal. La cocina, de estilo abierto, se integra perfectamente con el comedor y el salón, creando una zona de día luminosa y acogedora, con acceso directo a la terraza y la piscina. También dispone de un práctico cuarto de lavandería independiente. El exterior de la vivienda destaca por su piscina privada rodeada de zonas ajardinadas de fácil mantenimiento, una terraza cubierta ideal para comidas al aire libre, un comedor exterior con pérgola y césped artificial, así como un amplio solárium en la azotea. Además, la propiedad ofrece aparcamiento dentro de la parcela, incluyendo un carport cubierto. Entre sus extras se incluyen aire acondicionado por conductos, paneles solares, una distribución bien pensada y materiales de alta calidad. La vivienda está situada en una zona residencial tranquila pero muy bien conectada, a pocos minutos de campos de golf, centros comerciales como Zenia Boulevard y las mejores playas de Orihuela Costa. Esta villa representa una excelente opción tanto como residencia permanente como para quienes buscan una inversión segura en una de las zonas más demandadas de la Costa Blanca.

Imágenes

Localización

Fill out the form below to reach us and ask questions