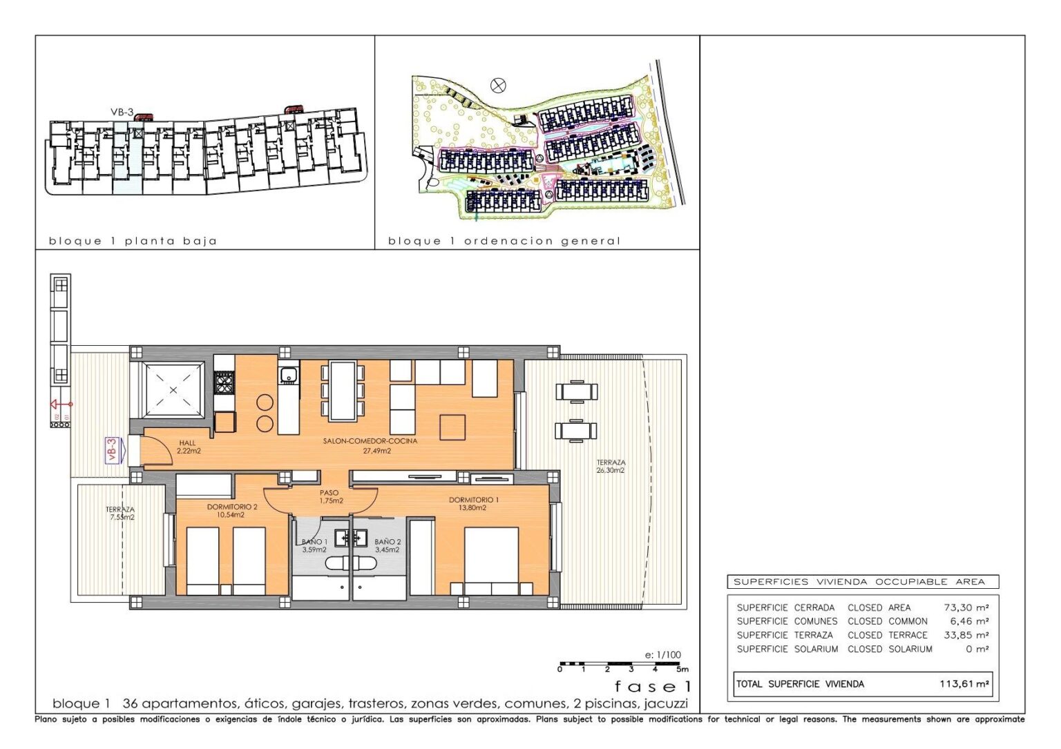
Villas de lujo de nueva construcción en Las Filipinas, Orihuela Costa Villas exclusivas cerca de las playas de Orihuela Costa Descubra una exclusiva promoción de solo 7 villas independientes de lujo situadas en Las Filipinas, una zona residencial bien establecida en Orihuela Costa. Este tranquilo barrio ofrece un ambiente mediterráneo relajado con todos los servicios esenciales cerca, incluyendo supermercados, restaurantes, bares y centros comerciales. Situadas a menos de 5 km de las hermosas playas de arena de la Costa Blanca, estas villas combinan arquitectura moderna, comodidad y funcionalidad en un entorno costero privilegiado. Dos modelos de villas contemporáneas para elegir La promoción ofrece dos elegantes diseños de villas, ambos con piscina privada y plaza de aparcamiento dentro de la parcela: El modelo de una sola planta incluye 3 dormitorios y 2 baños, uno de ellos en suite. Ofrece 113 m2 construidos en generosas parcelas de casi 300 m2, ideales para vivir cómodamente en una sola planta. El modelo de dos plantas más sótano ofrece 260 m2 construidos en parcelas de más de 220 m2. Esta distribución incluye 3 dormitorios, 3 baños, dos terrazas en la primera planta y un amplio sótano. El sótano se puede personalizar como oficina, sala de juegos, gimnasio o cine privado, lo que proporciona un espacio flexible para los estilos de vida modernos. Ambos modelos ofrecen la opción de añadir un solárium privado con un coste adicional. La villa de una sola planta también tiene la opción de añadir un sótano como extra. Diseño moderno y características de alta calidad Cada villa está diseñada con espacios diáfanos que conectan la cocina y el salón, creando un ambiente luminoso y acogedor. Los grandes ventanales proporcionan abundante luz natural y acceso directo a la terraza y a la piscina privada. Los acabados de alta calidad incluyen una puerta de entrada reforzada, preinstalación de aire acondicionado por conductos, sistema de agua caliente aerotérmica, calefacción eléctrica por suelo radiante en los baños y baños completamente equipados con muebles de baño y mamparas de ducha. El aparcamiento privado dentro de la parcela garantiza la comodidad y la seguridad. Ubicación privilegiada en Las Filipinas Orihuela Costa Las Filipinas es una popular zona residencial conocida por su tranquilidad y sus excelentes conexiones. Las villas se encuentran a unos 5 km de las playas de Campoamor y La Zenia, a 3 km de Villamartin Golf y a 4 km de Las Ramblas Golf. El animado centro comercial La Zenia Boulevard está a unos 4 km y ofrece una amplia gama de tiendas, restaurantes y entretenimiento. El aeropuerto internacional de Alicante se encuentra a unos 55 km, mientras que el puerto de Torrevieja está a unos 12 km, ideal para la navegación y las actividades de ocio en la costa. Estilo de vida mediterráneo y potencial de inversión Estas lujosas villas en Orihuela Costa son perfectas como residencia permanente, casa de vacaciones o propiedad de inversión. Con un diseño moderno, piscinas privadas, distribuciones flexibles y una ubicación privilegiada cerca de las playas y los campos de golf, ofrecen una oportunidad excepcional para disfrutar del estilo de vida de la Costa Blanca. Póngase en contacto con nosotros hoy mismo para recibir más información o concertar una visita a estas exclusivas villas de nueva construcción en Las Filipinas, Orihuela Costa. 1129
Imágenes
Localización
Fill out the form below toreach us and ask questions
Gestionar el consentimiento
Para garantizar la mejor experiencia posible, utilizamos tecnologías como las cookies para almacenar y/o acceder a información sobre el dispositivo. El consentimiento a estas tecnologías nos permitirá procesar datos como el comportamiento de navegación o los identificadores únicos en este sitio web. No dar su consentimiento o retirarlo puede afectar negativamente a algunas características y funciones.
Funcional
Siempre activo
Przechowywanie lub dostęp do danych technicznych jest ściśle konieczny do uzasadnionego celu umożliwienia korzystania z konkretnej usługi wyraźnie żądanej przez subskrybenta lub użytkownika, lub wyłącznie w celu przeprowadzenia transmisji komunikatu przez sieć łączności elektronicznej.
Preferencias
Przechowywanie lub dostęp techniczny jest niezbędny do uzasadnionego celu przechowywania preferencji, o które nie prosi subskrybent lub użytkownik.
Estadística
Przechowywanie techniczne lub dostęp, który jest używany wyłącznie do celów statystycznych.Przechowywanie techniczne lub dostęp, który jest używany wyłącznie do anonimowych celów statystycznych. Bez wezwania do sądu, dobrowolnego podporządkowania się dostawcy usług internetowych lub dodatkowych zapisów od strony trzeciej, informacje przechowywane lub pobierane wyłącznie w tym celu zwykle nie mogą być wykorzystywane do identyfikacji użytkownika.
Marketing
Przechowywanie lub dostęp techniczny jest wymagany do tworzenia profili użytkowników w celu wysyłania reklam lub śledzenia użytkownika na stronie internetowej lub na kilku stronach internetowych w podobnych celach marketingowych.