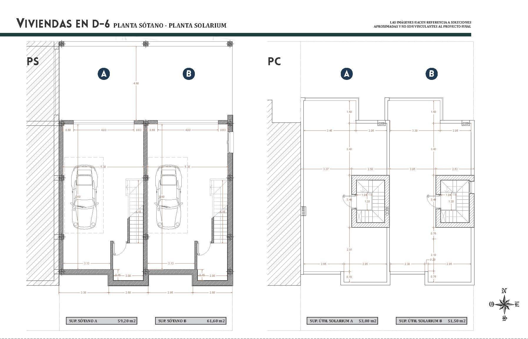
Nowe domy szeregowe z oranżerią i garażem w piwnicy w Bigastro Vega Baja Ekskluzywna inwestycja obejmująca tylko dwa nowoczesne domy Ten butikowy projekt nowo powstały to zaledwie dwa domy szeregowe w spokojnym miasteczku Bigastro, położonym w dzielnicy Vega Baja w południowej Costa Blanca. Zaprojektowane z praktycznym układem na kilku poziomach, te domy łączą przestrzeń, komfort i efektywność energetyczną w dobrze połączonym otoczeniu mieszkalnym. Bigastro słynie z cichej atmosfery, tradycyjnego hiszpańskiego charakteru oraz doskonałego dostępu do pobliskich miast, plaż i usług. Oferuje spokojny styl życia, jednocześnie będąc blisko wszystkiego, co jest potrzebne do codziennego życia, co czyni go idealnym zarówno do stałego pobytu, jak i wakacyjnego. Przestronny układ na czterech poziomach Każda nieruchomość rozłożona jest na piwnicę, parter, pierwsze piętro oraz dachowe solarium, oferując przestronne przestrzenie mieszkalne zarówno wewnątrz, jak i zewnętrzne. Piwnica o powierzchni 59 m2 zaprojektowana jest jako prywatny garaż z drzwiami z napędem elektrycznym, oferując bezpieczne miejsce parkingowe i dodatkową przestrzeń do przechowywania. Na parterze znajduje się jasny, otwarty salon z kuchnią, toaletą gościnną oraz dwoma tarasami – jednym z przodu, drugim z tyłu, co pozwala na naturalne światło i wentylację przez cały dzień. Na parterze znajdują się 3 sypialnie i 2 łazienki, z których jedna ma własną łazienkę, a dodatkowo jest dodatkowy taras. Na najwyższym poziomie prywatne dachowe solarium o powierzchni około 40 m2 zapewnia idealne miejsce do relaksu, opalania się lub stworzenia zewnętrznej strefy relaksu. Wysokiej jakości funkcje i energooszczędne systemy Domy te są zbudowane z nowoczesnych materiałów i z przemyślanymi detalami, aby zapewnić komfort i efektywność, w tym: wzmocnione drzwi wejściowe zabezpieczone System aerotermalny do ciepłej wody Fotowoltaiczne panele słoneczne Elektryczne żaluzje w salonie i sypialniach Wstępna instalacja klimatyzacji kanałowej Zmotoryzowane drzwi garażowe Mieszkańcy mają również dostęp do wspólnego basenu w ramach urbanizacji, dodając dodatkową wartość dla wypoczynku i relaksu. Dobrze skomunikowana lokalizacja Blisko plaż i usług Centrum Bigastro 0,5 km Orihuela City 5 km Plaże Guardamar del Segura 15 km Zenia Boulevard Shopping Center 20 km Vega Baja Hospital 10 km Międzynarodowe lotnisko Alicante 48 km Kilka pól golfowych w promieniu 15 km Pobliskia autostrada AP 7 zapewnia szybkie połączenia z Alicante, Murcią i okolicznymi nadmorskimi miastami. Doskonała okazja w rozwijającej się dzielnicy mieszkalnej Dzięki lokalnym sklepom, szkołom, obiektom sportowym, parkom i restauracjom, Bigastro zyskuje coraz większą popularność zarówno wśród krajowych, jak i międzynarodowych kupujących poszukujących jakości życia i dobrych kontaktów. Skontaktuj się z nami już dziś, aby uzyskać więcej informacji lub umówić się na wizytę w tych ekskluzywnych, nowo wybudowanych domach szeregowych w Bigastro.
Galeria
Lokalizacja
Skontaktuj się z nami izapytajo nieruchomości
Zarządzaj zgodą
Aby zapewnić jak najlepsze wrażenia, korzystamy z technologii, takich jak pliki cookie, do przechowywania i/lub uzyskiwania dostępu do informacji o urządzeniu. Zgoda na te technologie pozwoli nam przetwarzać dane, takie jak zachowanie podczas przeglądania lub unikalne identyfikatory na tej stronie. Brak wyrażenia zgody lub wycofanie zgody może niekorzystnie wpłynąć na niektóre cechy i funkcje.
Funkcjonalne
Zawsze aktywne
Przechowywanie lub dostęp do danych technicznych jest ściśle konieczny do uzasadnionego celu umożliwienia korzystania z konkretnej usługi wyraźnie żądanej przez subskrybenta lub użytkownika, lub wyłącznie w celu przeprowadzenia transmisji komunikatu przez sieć łączności elektronicznej.
Preferencje
Przechowywanie lub dostęp techniczny jest niezbędny do uzasadnionego celu przechowywania preferencji, o które nie prosi subskrybent lub użytkownik.
Statystyka
Przechowywanie techniczne lub dostęp, który jest używany wyłącznie do celów statystycznych.Przechowywanie techniczne lub dostęp, który jest używany wyłącznie do anonimowych celów statystycznych. Bez wezwania do sądu, dobrowolnego podporządkowania się dostawcy usług internetowych lub dodatkowych zapisów od strony trzeciej, informacje przechowywane lub pobierane wyłącznie w tym celu zwykle nie mogą być wykorzystywane do identyfikacji użytkownika.
Marketing
Przechowywanie lub dostęp techniczny jest wymagany do tworzenia profili użytkowników w celu wysyłania reklam lub śledzenia użytkownika na stronie internetowej lub na kilku stronach internetowych w podobnych celach marketingowych.