newsletter
OTRZYMUJ NAJLEPSZE OFERTY JAKO PIERWSZY!
Czat WhatsApp
  • Polski
  • Español
  • English

Orihuela costa

ref. number: RD-65227

202 500 €

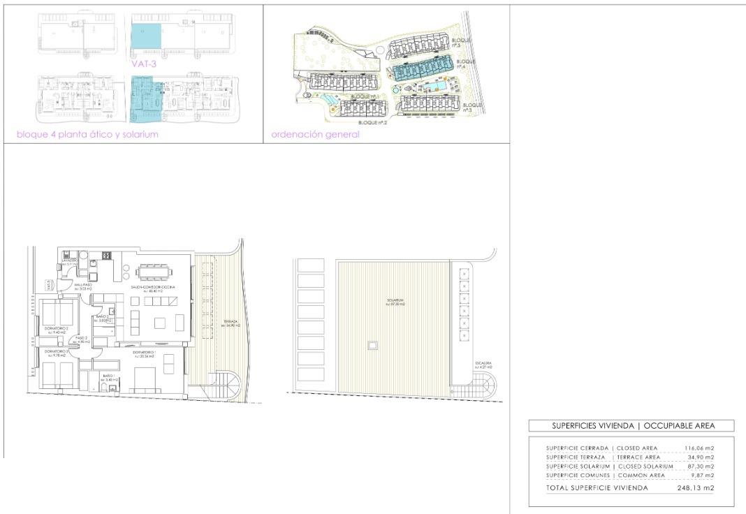
Powierzchnia (m²)
69 m2
Sypialnie
2
Łazienki
2
Basen
1
  • Winda/winda
  • Basen wspólny
  • Osiedle zamknięte
  • Blisko drzewa
  • Szkoły w pobliżu
  • Centrum handlowe w pobliżu
  • Lokalizacja: nadmorska, miejska
  • Solarium: tak
  • Niedobudowane / Piwnica
  • Sypialnia dwuosobowa: 2
  • Plaża: 2000 m
  • Powierzchnia użtkowa: 60 m²
  • Taras: 62 m²

Opis

Odnowiony kompleks mieszkaniowy w Lomas de Cabo Roig – Odnowione apartamenty w doskonałej lokalizacji Odkryj tę wyjątkową możliwość posiadania odnowionego mieszkania w Lomas de Cabo Roig, pożądanej dzielnicy Orihuela Costa. Ten kompleks mieszkaniowy, pierwotnie zbudowany w 2008 roku, jest obecnie remontowany i zostanie dostarczony w czerwcu 2025 roku. Do oglądania dostępny jest dom pokazowy, dzięki czemu można zobaczyć wysokiej jakości wykończenia na własne oczy. Opcje nieruchomości spełniające każdą potrzebę Ten projekt oferuje 27 odnowionych apartamentów o różnych układach: mieszkania z jedną i dwiema sypialniami, idealne na domy wakacyjne lub inwestycyjne. Mieszkania na parterze z prywatnymi ogrodami, idealne do życia na świeżym powietrzu. Apartamenty na średnim piętrze z przestronnymi tarasami, idealne do korzystania z klimatu śródziemnomorskiego. Penthouse'y z prywatnymi solariami, oferujące otwarte widoki i maksymalną prywatność. Każdy dom wyposażony jest w mytarze prysznicowe w łazienkach oraz w pełni wyposażone kuchnie z aparatami AGD, co gwarantuje gotowe rozwiązanie dla kupujących. Ekskluzywne udogodnienia społecznościowe Kompleks mieszkaniowy został zaprojektowany z myślą o wygodzie i relaksie, obejmując o: wspólny basen otoczony pięknie zagospodarowanymi ogrodami. Winda ułatwiająca dostęp do wszystkich pięter. Opcjonalne podziemne miejsca parkingowe dostępne są za dodatkową opłatą. Niezrównana lokalizacja w Orihuela Costa Lomas de Cabo Roig to prestiżowa dzielnica mieszkaniowa położona zaledwie 2 km od wybrzeża Cabo Roig, będąca domem dla jednych z najpiękniejszych plaż w Orihuela Costa. Okolica jest dobrze skomunikowana drogą i oferuje szeroki zakres usług, w tym sklepy, restauracje, supermarkety i centra handlowe. Odległości do kluczowych punktów zainteresowania: plaże Cabo Roig i Campoamor – 5 minut jazdy. Centrum handlowe Zenia Boulevard – 5 km. Pole golfowe Villamartín – 4 km. Lotnisko Alicante – 30 minut samochodem. Lotnisko Murcia-Corvera – 1 godzina samochodem. Mądra inwestycja w Costa Blanca Dzięki doskonałej lokalizacji, w pełni wyremontowanym apartamentom i najwyższej klasie udogodnieniom, to inwestycja stanowi idealną okazję na inwestycję, wakacyjne mieszkanie lub stały pobyt. Nie przegap tej wyjątkowej okazji, by posiadać dom w jednej z najbardziej pożądanych części Costa Blanca w niezrównanej cenie. Skontaktuj się z nami już dziś, aby uzyskać więcej informacji lub umówić się na wizytę!

Galeria

Lokalizacja

Skontaktuj się z nami i zapytaj o nieruchomości