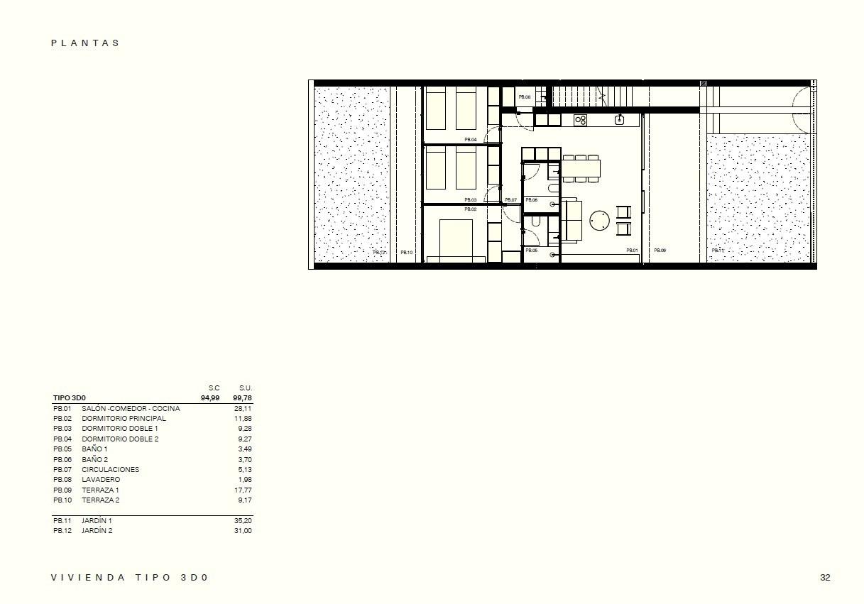
Nowo wybudowane apartamenty mieszkalne w Los Balcones, Torrevieja Nowoczesne domy w atrakcyjnej dzielnicy mieszkalnej Odkryj ten atrakcyjny kompleks mieszkaniowy położony w Los Balcones, jednej z najpopularniejszych i najbardziej ugruntowanych dzielnic na obrzeżach Torrevieja. Położony w spokojnym otoczeniu z doskonałym dostępem do wszystkich niezbędnych usług, ten kompleks znajduje się zaledwie 4 km od piaszczystych plaż Costa Blanca. Los Balcones słynie z swobodnej atmosfery, szerokich ulic, terenów zielonych oraz bliskości szpitali, supermarketów, restauracji i centrów handlowych, co czyni je idealnym miejscem do całorocznego życia lub wakacyjnego. Nowoczesne apartamenty z prywatnymi przestrzeniami na zewnątrz Kompleks składa się z 52 nowoczesnych apartamentów wybudowanych na łącznej powierzchni 6700 m2. Każda nieruchomość posiada prywatne miejsce parkingowe oraz magazyn w metrze. Domy oferują 2 lub 3 sypialnie oraz 2 łazienki, z których jedna jest z własną łazienką. Kupujący mogą wybrać między mieszkaniami na parterze z prywatnym ogrodem lub domami na piętrze z przestronnym tarasem i prywatną oranżerią. Te układy zostały zaprojektowane tak, aby maksymalizować naturalne światło i zapewnić komfortowe przestrzenie wewnętrzne i zewnętrzne, umożliwiające korzystanie z śródziemnomorskiego klimatu przez cały rok. Obszary wspólne przeznaczone do relaksu Projekt podzielony jest na cztery bloki otaczające duży, centralny obszar wspólny. To zielone serce osiedla obejmuje basen z dedykowaną strefą dla dzieci oraz pięknie zagospodarowane ogrody. Te wspólne przestrzenie są idealne do relaksu, spotkań towarzyskich i spędzania czasu z rodziną w bezpiecznym i przyjaznym środowisku. Cechy wysokiej jakości i energooszczędny projekt Każde mieszkanie jest zbudowane według nowoczesnych standardów i obejmuje wstępną instalację klimatyzacji kanałowej, system aerotermalnej podgrzewania wody dla lepszej efektywności energetycznej, oświetlenie zewnętrzne oraz podwójnie przeszkloną stolarkę zewnętrzną. Kuchnie są w pełni umeblowane, oferując funkcjonalną i stylową przestrzeń do codziennego życia. Te cechy zapewniają wysoki poziom komfortu, niską konserwację i obniżone zużycie energii, dzięki czemu domy są zarówno praktyczne, jak i zrównoważone. Doskonała lokalizacja w pobliżu plaż i golfa Los Balcones oferuje strategiczne położenie blisko wielu miejsc wartych uwagi. Plaże Torrevieja znajdują się około 4 km dalej. W promieniu 10 do 15 km znajduje się kilka renomowanych pól golfowych, takich jak Villamartin Golf, Las Ramblas Golf i Campoamor Golf. Szpital Uniwersytecki w Torrevieja znajduje się mniej niż 2 km stąd, co dodaje wygody i spokoju. Centrum Torrevieja znajduje się około 5 km stąd, połączone autobusem z Los Balcones, gdzie znajduje się szeroki wybór sklepów, restauracji, miejsc kulturalnych oraz tętniąca życiem marina. Międzynarodowe lotnisko Alicante znajduje się około 42 km stąd, zapewniając łatwe połączenia międzynarodowe. Port Torrevieja znajduje się około 6 km stąd. Idealne do życia lub inwestycji Dzięki nowoczesnemu projektowi, doskonałym przestrzeniom wspólnym oraz doskonałej lokalizacji blisko plaż, golfa i usług, ten nowy kompleks mieszkaniowy w Los Balcones Torrevieja jest idealnym miejscem zamieszkania, domem wakacyjnym lub okazją inwestycyjną. Skontaktuj się z nami już dziś, aby uzyskać więcej informacji lub umówić się na oglądanie tych nowo wybudowanych mieszkań w Los Balcones, Torrevieja.
Galeria
Lokalizacja
Skontaktuj się z nami izapytajo nieruchomości
Zarządzaj zgodą
Aby zapewnić jak najlepsze wrażenia, korzystamy z technologii, takich jak pliki cookie, do przechowywania i/lub uzyskiwania dostępu do informacji o urządzeniu. Zgoda na te technologie pozwoli nam przetwarzać dane, takie jak zachowanie podczas przeglądania lub unikalne identyfikatory na tej stronie. Brak wyrażenia zgody lub wycofanie zgody może niekorzystnie wpłynąć na niektóre cechy i funkcje.
Funkcjonalne
Zawsze aktywne
Przechowywanie lub dostęp do danych technicznych jest ściśle konieczny do uzasadnionego celu umożliwienia korzystania z konkretnej usługi wyraźnie żądanej przez subskrybenta lub użytkownika, lub wyłącznie w celu przeprowadzenia transmisji komunikatu przez sieć łączności elektronicznej.
Preferencje
Przechowywanie lub dostęp techniczny jest niezbędny do uzasadnionego celu przechowywania preferencji, o które nie prosi subskrybent lub użytkownik.
Statystyka
Przechowywanie techniczne lub dostęp, który jest używany wyłącznie do celów statystycznych.Przechowywanie techniczne lub dostęp, który jest używany wyłącznie do anonimowych celów statystycznych. Bez wezwania do sądu, dobrowolnego podporządkowania się dostawcy usług internetowych lub dodatkowych zapisów od strony trzeciej, informacje przechowywane lub pobierane wyłącznie w tym celu zwykle nie mogą być wykorzystywane do identyfikacji użytkownika.
Marketing
Przechowywanie lub dostęp techniczny jest wymagany do tworzenia profili użytkowników w celu wysyłania reklam lub śledzenia użytkownika na stronie internetowej lub na kilku stronach internetowych w podobnych celach marketingowych.