newsletter
OTRZYMUJ NAJLEPSZE OFERTY JAKO PIERWSZY!
Czat WhatsApp
  • Polski
  • Español
  • English

Torre Pacheco

ref. number: RD-97687

238 000 €

Powierzchnia (m²)
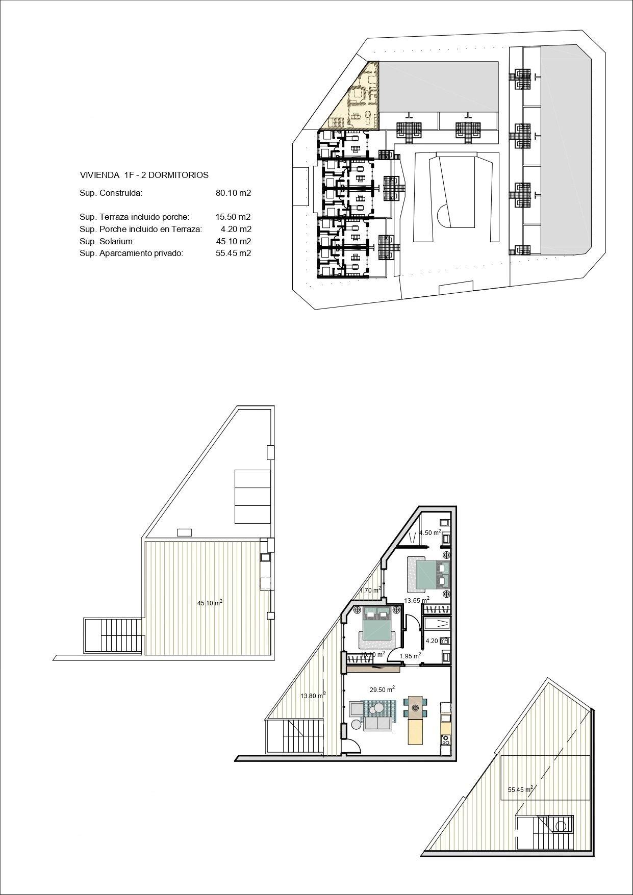
80 m2
Sypialnie
2
Łazienki
2
Basen
1
  • Basen wspólny
  • Osiedle zamknięte
  • Centrum handlowe w pobliżu
  • Solarium: tak
  • miejsca parkingowe: 1
  • Klimatyzacja: pre-instalacja
  • Sypialnia dwuosobowa: 2
  • Powierzchnia użtkowa: 70 m²
  • Lokalizacja: nadmorska, wiejska, miejska
  • Taras: 60 m²
  • Plaża: 15000 m

Opis

NOWO WYBUDOWANE BUNGALOWY W ROLDAN Nowo wybudowany zamknięty kompleks mieszkaniowy z apartamentami bungalowowymi zlokalizowany w Roldán, Murcja. Te ekskluzywne bungalowy zaprojektowano z 3 sypialniami i 2 łazienkami, tarasem na parterze oraz dwoma sypialniami, 2 łazienkami i solarium na górnym piętrze. Wnętrza, eleganckie i funkcjonalne, mają wysokiej jakości podłogi, w pełni wyposażone kuchnie w bieli połączone z imitacją drewna, w tym sprzęt elektryczny. Łazienki mają szafkę toaletową z umywalką i światłem. Sypialnie wyposażone są w szafy wyłożone z szufladami i drzwiami przesuwnymi, a każda nieruchomość posiada wstępną instalację klimatyzacji kanałowej. Elewacje nie są mniej imponujące, w tym wspólny basen oraz piękny plac sportowy i plac zabaw na sztucznej trawie do zabawy. Każda nieruchomość ma miejsce parkingowe. Magazyny są opcjonalne za dodatkową opłatą. Samo Roldan to tradycyjne miasto z wszystkimi lokalnymi udogodnieniami, w tym supermarketami, restauracjami, barami, przychodnią zdrowia, apteką, komisariatem policji, stacją benzynową, mechanikami, dentystami, lekarzami i wieloma innymi. Pobliskie ośrodki golfowe La Torre, & Terrazy są łatwo dostępne, lotnisko Corvera jest oddalone o 15 minut oraz plaże Mar Menor oddalone zaledwie 20 minut jazdy.

Galeria

Lokalizacja

Skontaktuj się z nami i zapytaj o nieruchomości