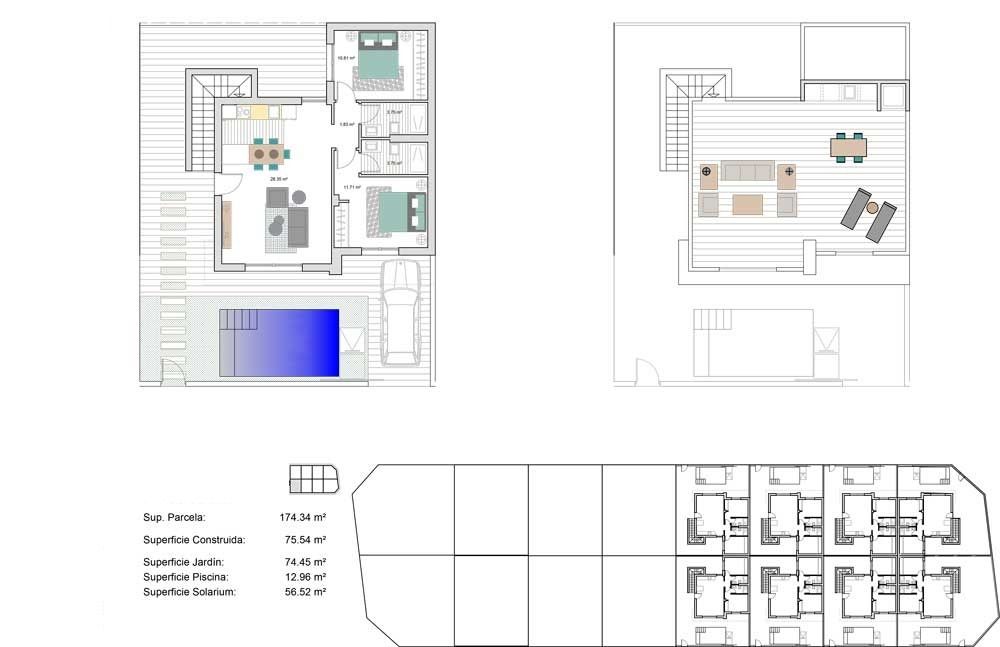
NOWO WYBUDOWANE WILLE W PRYWATNYM OGRODZONYM KURORCIE W PROWINCJI MURCIA Nowe wille w prywatnym ogrodzonym kurorcie w regionie Murcji, otoczone doskonałymi polami golfowymi i zaledwie 10 minut od piaszczystych plaż Morza Mar Menor. Usytuowana w uprzywilejowanej lokalizacji, na drugiej linii laguny z białym piaskiem i turkusową wodą. Zaledwie kilka kroków od głównego wejścia prezentujemy te wspaniałe wille z trzema sypialniami. Te luksusowe wille oferują harmonijne połączenie nowoczesnej elegancji i wyrafinowania, a wykończone są na najwyższym poziomie. Główna część mieszkalna przechodzi do ogrodu i basenu, tworząc idealną atmosferę dla spokoju i piękna. Otwarty układ łączy salon, jadalnię z nowoczesną kuchnią, tworząc płynny przepływ do przyjmowania lub cieszenia się uroczym, spokojnym wieczorem. Kuchnia jest w pełni wyposażona w najnowsze urządzenia i materiały. Trzecia sypialnia na parterze mogłaby być łatwo wykorzystana jako gabinet lub prywatna przestrzeń do pracy, zapewniając idealną równowagę między pracą a życiem. Duże solarium oferuje szeroki wybór możliwości relaksu, jedzenia na świeżym powietrzu lub po prostu opalania się i pięknych widoków na lagunę i dalej. Ponadto te wspaniałe wille oferują spektakularną piwnicę o powierzchni ponad 100m2 z angielskim patio, które zapewnia zieleń i obfitość naturalnego światła do tej wielofunkcyjnej przestrzeni, która może służyć jako siłownia, kino lub miejsce rozrywki. Znajduje się w prywatnym, zamkniętym kurorcie, z głównym wejściem i całodobową ochroną. Ośrodek został zaprojektowany wokół imponującego terenu zielonego o powierzchni 126 000 m2. Obejmuje ścieżki spacerowe i rowerowe, obiekty sportowe, korty do paddle i tenisa, pole do minigolfa, ogrody, parki dla psów, strefy rekreacyjne, klub.... W centralnej części znajduje się także klejnot kurortu – krystalicznie czyste sztuczne jezioro o powierzchni prawie 17 000 m2, otoczone białymi piaszczystymi plażami i palmami, które przynosi kawałek Karaibów do regionu Murcji. Na jeziorze znajdują się dwie wyspy, z których jedna ma własny bar, a wokół jeziora rozmieszczone są także "plażowe Chiringuitos". Kurort jest strategicznie położony mniej niż 4 km od plaży i miasta Los Alcázares, gdzie można uprawiać różne sporty wodne, otoczony kilkoma polami golfowymi oraz miastem Cartagena, oddalonym o mniej niż 15 minut jazdy samochodem i 22 km od lotniska w Murcji, dzięki czemu oferuje szeroką ofertę kulturalną, gastronomiczną i sportową w zasięgu ręki.
Galeria
Lokalizacja
Skontaktuj się z nami izapytajo nieruchomości
Zarządzaj zgodą
Aby zapewnić jak najlepsze wrażenia, korzystamy z technologii, takich jak pliki cookie, do przechowywania i/lub uzyskiwania dostępu do informacji o urządzeniu. Zgoda na te technologie pozwoli nam przetwarzać dane, takie jak zachowanie podczas przeglądania lub unikalne identyfikatory na tej stronie. Brak wyrażenia zgody lub wycofanie zgody może niekorzystnie wpłynąć na niektóre cechy i funkcje.
Funkcjonalne
Zawsze aktywne
Przechowywanie lub dostęp do danych technicznych jest ściśle konieczny do uzasadnionego celu umożliwienia korzystania z konkretnej usługi wyraźnie żądanej przez subskrybenta lub użytkownika, lub wyłącznie w celu przeprowadzenia transmisji komunikatu przez sieć łączności elektronicznej.
Preferencje
Przechowywanie lub dostęp techniczny jest niezbędny do uzasadnionego celu przechowywania preferencji, o które nie prosi subskrybent lub użytkownik.
Statystyka
Przechowywanie techniczne lub dostęp, który jest używany wyłącznie do celów statystycznych.Przechowywanie techniczne lub dostęp, który jest używany wyłącznie do anonimowych celów statystycznych. Bez wezwania do sądu, dobrowolnego podporządkowania się dostawcy usług internetowych lub dodatkowych zapisów od strony trzeciej, informacje przechowywane lub pobierane wyłącznie w tym celu zwykle nie mogą być wykorzystywane do identyfikacji użytkownika.
Marketing
Przechowywanie lub dostęp techniczny jest wymagany do tworzenia profili użytkowników w celu wysyłania reklam lub śledzenia użytkownika na stronie internetowej lub na kilku stronach internetowych w podobnych celach marketingowych.