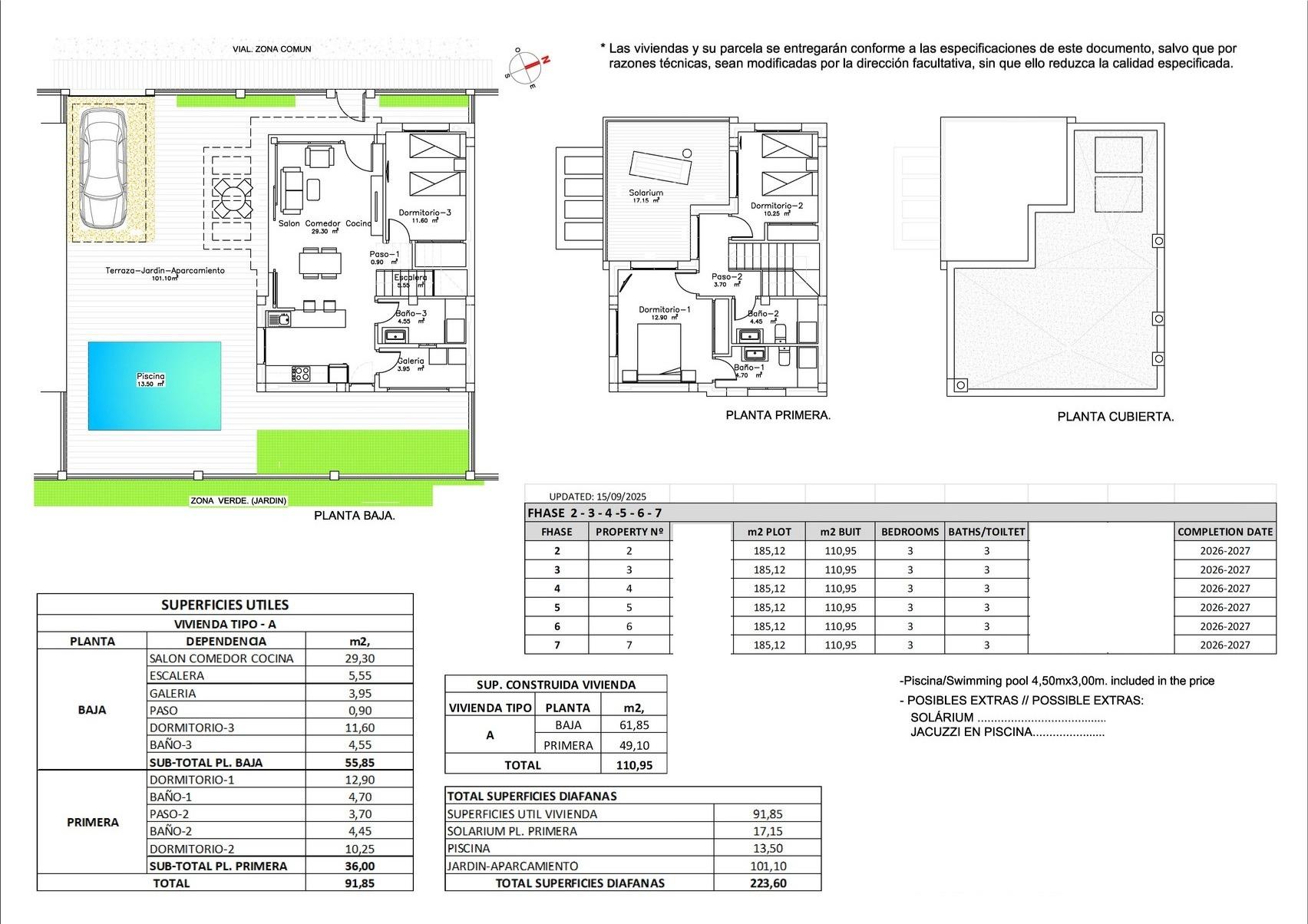
Nowoczesne nowo wybudowane wille w La Herrada Los Montesinos z prywatnym basenem – ekskluzywny projekt mieszkalny w spokojnym otoczeniu. Położony w prestiżowej urbanizacji La Herrada w Los Montesinos, ten ekskluzywny kompleks 16 nowoczesnych willi oferuje prywatność, komfort i doskonałą jakość życia. La Herrada słynie z cichej, mieszkalnej atmosfery, bliskości codziennych nabożeństw oraz uprzywilejowanego położenia pomiędzy słynnymi słonymi jeziorami Torrevieja i La Mata. To idealne miejsce dla osób poszukujących spokojnego i zdrowego śródziemnomorskiego stylu życia na południu Costa Blanca. Współczesny design z zoptymalizowanymi przestrzeniami wnętrzowymi Każda willa ma 110 m² dobrze zaplanowanej przestrzeni mieszkalnej rozłożonej na dwóch piętrach, zaprojektowanej tak, by maksymalizować naturalne światło i funkcjonalność. Zbudowane na działkach o powierzchni od 185 m², nieruchomości oferują przestronne przestrzenie na świeżym powietrzu, idealne do opalania, zabaw lub relaksu przy prywatnym basenie. Wygodny układ na dwóch piętrach Parter oferuje otwarty salon z w pełni zintegrowaną kuchnią oraz bezpośrednim dostępem do ogrodu i basenu. Na tym poziomie znajduje się także jedna sypialnia, pełna łazienka oraz wygodna pralnia. Na górze znajdują się dwie przestronne sypialnie, każda z własną łazienką, z których jedna jest z własną łazienką. Obie sypialnie mają dostęp do prywatnego, otwartego tarasu o powierzchni 17 m². Dla tych, którzy chcą jeszcze więcej przestrzeni na zewnątrz, dostępna jest opcjonalna oranżeria na dachu za dodatkową opłatą. Wysokiej jakości wykończenia i nowoczesne elementy Wille wyposażone są w wysokiej jakości wykończenia, takie jak meble łazienkowe, lustra, ekrany prysznicowe oraz ogrzewanie podłogowe we wszystkich łazienkach. Na działce jest wstępnie zainstalowana klimatyzacja kanałowa, brama wjazdowa dla pojazdów zmotoryzowanych, prywatny parking na działce oraz zamknięty dostęp mieszkalny przez prywatną wewnętrzną ulicę. Doskonała lokalizacja Blisko kluczowych udogodnień i atrakcji Plaże Guardamar i Torrevieja 9 km La Marquesa Golf, La Finca Golf i Vistabella Golf w odległości 5 km Lotnisko Alicante 29 km Parki przyrody, słone jeziora, trasy rowerowe i szlaki turystyczne w pobliżu Żyj komfortowo w sercu Costa Blanca Te nowo wybudowane wille w Los Montesinos oferują idealne połączenie nowoczesnego komfortu, naturalne otoczenie i doskonała dostępność. Niezależnie od tego, czy szukasz stałego miejsca zamieszkania, czy domu wakacyjnego, ten projekt zapewnia wszystko, czego potrzebujesz, by cieszyć się spokojnym i wygodnym śródziemnomorskim stylem życia. Skontaktuj się z nami już dziś, aby umówić się na oglądkę i zabezpieczyć swój nowy dom w La Herrada.
Galeria
Lokalizacja
Skontaktuj się z nami izapytajo nieruchomości
Zarządzaj zgodą
Aby zapewnić jak najlepsze wrażenia, korzystamy z technologii, takich jak pliki cookie, do przechowywania i/lub uzyskiwania dostępu do informacji o urządzeniu. Zgoda na te technologie pozwoli nam przetwarzać dane, takie jak zachowanie podczas przeglądania lub unikalne identyfikatory na tej stronie. Brak wyrażenia zgody lub wycofanie zgody może niekorzystnie wpłynąć na niektóre cechy i funkcje.
Funkcjonalne
Zawsze aktywne
Przechowywanie lub dostęp do danych technicznych jest ściśle konieczny do uzasadnionego celu umożliwienia korzystania z konkretnej usługi wyraźnie żądanej przez subskrybenta lub użytkownika, lub wyłącznie w celu przeprowadzenia transmisji komunikatu przez sieć łączności elektronicznej.
Preferencje
Przechowywanie lub dostęp techniczny jest niezbędny do uzasadnionego celu przechowywania preferencji, o które nie prosi subskrybent lub użytkownik.
Statystyka
Przechowywanie techniczne lub dostęp, który jest używany wyłącznie do celów statystycznych.Przechowywanie techniczne lub dostęp, który jest używany wyłącznie do anonimowych celów statystycznych. Bez wezwania do sądu, dobrowolnego podporządkowania się dostawcy usług internetowych lub dodatkowych zapisów od strony trzeciej, informacje przechowywane lub pobierane wyłącznie w tym celu zwykle nie mogą być wykorzystywane do identyfikacji użytkownika.
Marketing
Przechowywanie lub dostęp techniczny jest wymagany do tworzenia profili użytkowników w celu wysyłania reklam lub śledzenia użytkownika na stronie internetowej lub na kilku stronach internetowych w podobnych celach marketingowych.