newsletter
OTRZYMUJ NAJLEPSZE OFERTY JAKO PIERWSZY!
Czat WhatsApp
  • Polski
  • Español
  • English

Alicante

ref. number: RD-49434

319 900 €

Powierzchnia (m²)
82 m2
Sypialnie
2
Łazienki
2
Basen
1
  • Basen wspólny
  • Kosmos
  • Szkoły w pobliżu
  • Centrum handlowe w pobliżu
  • Trasa autobusowa w pobliżu
  • Lokalizacja: nadmorska, miejska
  • Klimatyzacja: pre-instalacja
  • Stacja kolejowa w pobliżu
  • Powierzchnia użtkowa: 74 m²
  • Sypialnia dwuosobowa: 2
  • Plaża: 1000 m
  • Taras: 5 m²

Opis

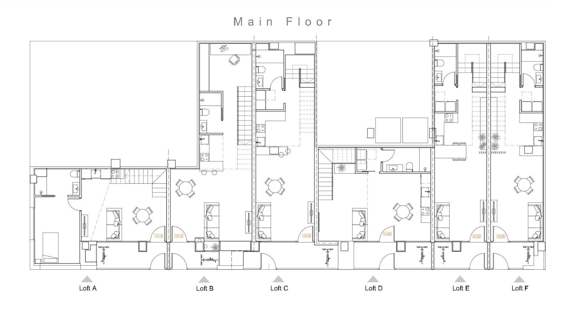
Nowoczesne apartamenty z duplexem loft w sercu Alicante Ekskluzywna nowa inwestycja w dzielnicy Benalúa Odkryj wyjątkową okazję, by posiadać stylowe apartamenty z duplexem loft w Benalúa, jednej z najbardziej tętniących życiem i najlepiej połączonych dzielnic Alicante. Ten unikalny projekt przekształca sześć nieużywanych lokali komercyjnych w nowoczesne lofty mieszkalne, oferując nowoczesny miejski styl życia zaledwie 1 km od wybrzeża Morza Śródziemnego. Benalúa słynie z lokalnych sklepów, kawiarni, działalności kulturalnej oraz bliskości centrum miasta, co czyni ją bardzo pożądanym miejscem zarówno wśród mieszkańców, jak i inwestorów. Współczesny loft-style design Każdy dom został całkowicie przeprojektowany, aby zaoferować świeżą, otwartą i elegancką przestrzeń życiową. Promocja obejmuje lofty z 1 i 2 sypialniami oraz 2 łazienkami, wszystkie wyposażone w imponujące podwójne przestrzenie, które poprawiają naturalne światło i tworzą prawdziwą atmosferę loftu. Na górnym piętrze znajduje się sypialnia i pełna łazienka, co zapewnia prywatność i komfort. Dzięki niezależnemu dostępowi od strony ulicy i prywatnego tarasu, każde mieszkanie łączy nowoczesną architekturę z praktycznym życiem. Wysokiej jakości wykończenia, nowoczesne układy i jasne wnętrza sprawiają, że te lofty są wyróżniającym się wyborem dla osób poszukujących stylu i funkcjonalności. Komfort i udogodnienia społeczne Mieszkańcy będą mieli dostęp do basenu społecznościowego znajdującego się w budynku, zapewniającego relaksującą i orzeźwiającą atmosferę na ciepłe śródziemnomorskie dni. Prywatne tarasy i niezależne wejścia dodają dodatkową warstwę wygody i ekskluzywności. Doskonała lokalizacja blisko kluczowych punktów zainteresowania Idealnie położona zarówno do życia życia, jak i inwestycji, otoczona jest niezbędnymi usługami i głównymi atrakcjami: Plaża Alicante: 1 km Stacja kolejowa Renfe: 0,8 km Centrum handlowe El Corte Inglés: 0,7 km Pałac Sprawiedliwości w Alicante: 0,5 km Lotnisko w Alicante: 12 km Marina i Port: 2 km Pola golfowe (Alicante Golf): 7 km Obszar oferuje doskonałe połączenia transportu publicznego, miejsca kulturalne, tereny zielone oraz łatwy dostęp do pięknych plaż miasta. Mądra inwestycja w nadmorski styl życia Alicante Niezależnie od tego, czy szukasz głównego domu, wakacyjnej nieruchomości czy inwestycji o dużym potencjale najmu, te apartamenty dwupoziomowe w Benalúa stanowią wyjątkową szansę w jednej z najbardziej obiecujących dzielnic Alicante. Skontaktuj się z nami już dziś, aby zarezerwować swój ekskluzywny loft i cieszyć się nowoczesnym życiem w sercu Alicante. * Dostęp do basenu po uzyskaniu zgody przez społeczność w momencie zmiany przeznaczenia obiektu.

Galeria

Lokalizacja

Skontaktuj się z nami i zapytaj o nieruchomości