newsletter
¡SE EL PRIMER EN RECIBIR LAS MEJORES OFERTAS!
Chat WhatsApp
  • Polski
  • Español
  • English

Mojacar

ref. number: SP-39682

364 000 €

Construir (m²)
112 m2
terreno (m²)
21 m2
Habitaciones
2
Baños
2
Piscina
1
  • Jardín
  • Ascensor/Ascensor
  • Piscina comunitaria
  • Urbanización cerrada
  • Cerca del golf
  • Opiniones: Sea
  • Cerca de escuelas
  • Cerca centro comercial
  • Ubicación: costa, urbanización
  • Plazas de aparcamiento: 1
  • Habitación doble: 2
  • Superficie útil: 65 m²
  • Primera línea hacia el mar
  • Aparcamiento - Espacio
  • Terraza: 30 m²
  • Playa: 200 m
  • Almacenamiento / Trastero

Descripción

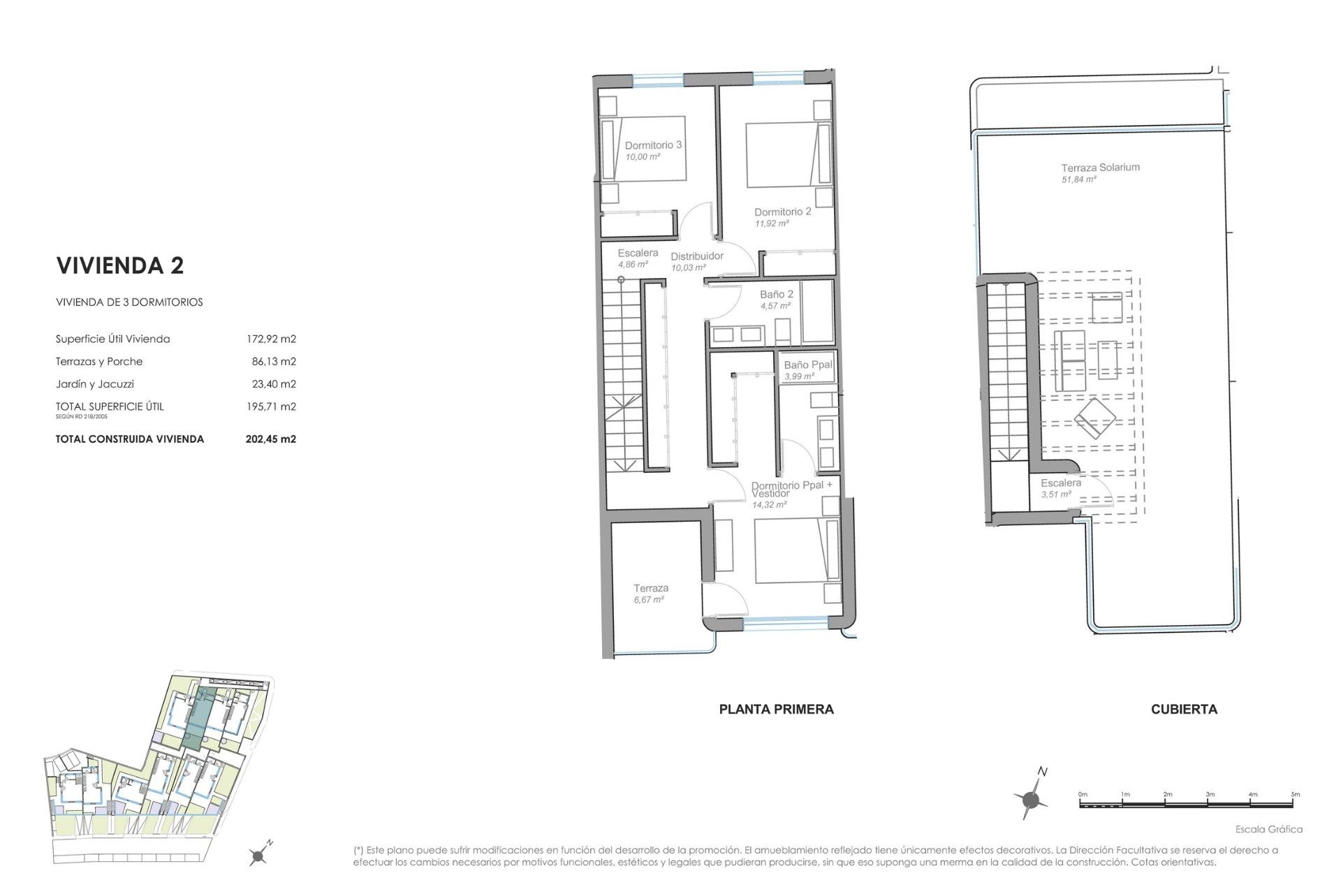
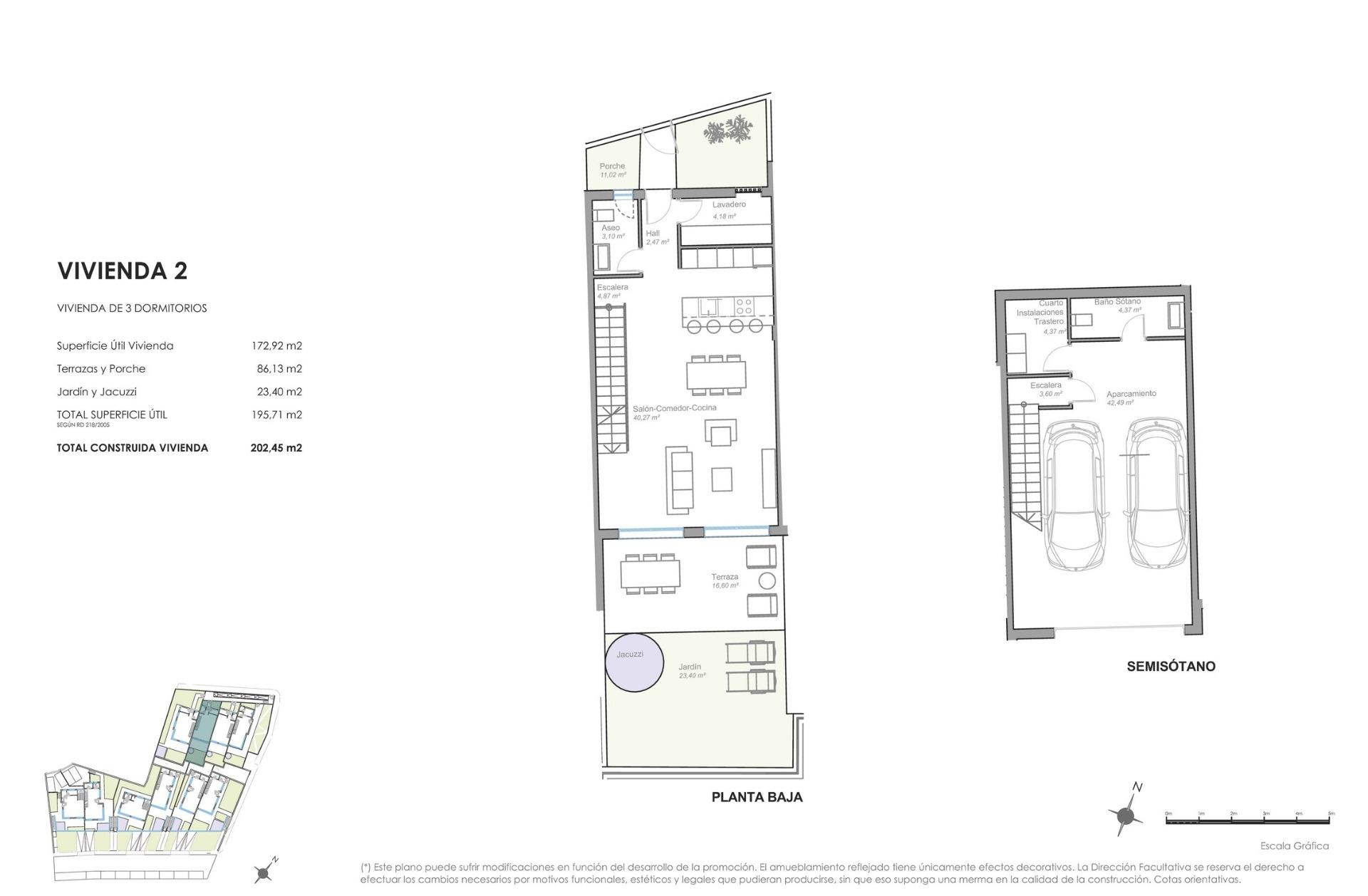
Apartamentos y áticos de nueva construcción frente al mar en venta en Macenas, Almería Vida moderna en la costa en un complejo cerrado junto al Mediterráneo Descubra una nueva urbanización exclusiva en Macenas, Almería, diseñada para ofrecer un estilo de vida mediterráneo único. Este moderno complejo cerrado cuenta con 125 viviendas de 1, 2 y 3 dormitorios, incluyendo espectaculares áticos, amplios apartamentos en planta baja con jardines privados y piscinas privadas opcionales. Cada vivienda cuenta con amplias terrazas con vistas panorámicas al mar, perfectas para disfrutar del clima costero durante todo el año. Todas las viviendas incluyen plaza de garaje y trastero. Diseño premium y construcción sostenible La arquitectura combina la elegancia contemporánea con el estilo mediterráneo, integrándose perfectamente en el impresionante entorno natural de Macenas. Construido con materiales sostenibles y paisajismo autóctono, el complejo promueve una vida responsable en armonía con el medio ambiente. Las viviendas cuentan con cocinas totalmente equipadas con electrodomésticos de primeras marcas, aire acondicionado por conductos y puertas de entrada con seguridad reforzada. Excepcionales zonas comunes y servicios en el complejo El complejo ofrece una gran variedad de servicios de alta gama que mejoran la experiencia de la vida cotidiana. Los residentes disfrutan de acceso a: Piscina infinita al aire libre Piscina cubierta climatizada Terraza chill-out y solárium con vistas al mar Club social con restaurante y zona de salón Centro de bienestar e instalaciones de belleza Tiendas y un centro deportivo totalmente equipado Todo está diseñado para promover un estilo de vida relajado y saludable, tanto si busca una residencia permanente, un refugio para las vacaciones o una inversión en una de las ubicaciones frente al mar más privilegiadas de Almería. Ubicación en primera línea de playa en Macenas Situada en primera línea de mar y a pocos pasos de la playa, esta promoción goza de una ubicación privilegiada cerca del espacio natural protegido de Cabo de Gata. La zona ofrece una combinación única de paisajes vírgenes, playas mediterráneas y una creciente oferta de servicios de alta gama. También incluye un futuro campo de golf de 18 hoyos integrado con vegetación autóctona y soluciones ecológicas. Puntos de interés cercanos Playa de Macenas – 200 m Mojácar Pueblo – 6 km Marina de la Torre Golf – 9 km Parque Natural de Cabo de Gata – 30 km Ciudad de Almería – 88 km Aeropuerto de Almería – 77 km Su escapada mediterránea le espera No pierda esta oportunidad de adquirir una vivienda elegante y sostenible junto al mar en una de las urbanizaciones más exclusivas de Almería. Póngase en contacto con nosotros hoy mismo para obtener más información o concertar una visita a este complejo único en Macenas. 291

Imágenes

Localización

Fill out the form below to reach us and ask questions